Unité pme
REF: M-0054 (UA03)
Hoogstraat 162/C (A03), 9550 Herzele
€ 500.650 hors TVA
- 323 m²
- 323 m²
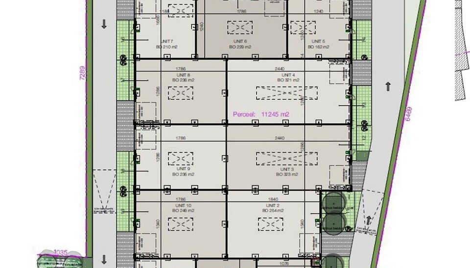
Nieuwbouw magazijn te koop vanaf 186m² tot 323m² in bedrijvenpark te Herzele.
Deze KMO-units zijn strategisch gelegen langs de Hoogstraat in Herzele, een vlot bereikbare locatie voor zowel lokale ondernemers als bedrijven die actief zijn in de ruimere regio. De site ligt op korte afstand van het centrum van Herzele én op slechts enkele minuten rijden van Zottegem, wat een snelle verbinding biedt naar een belangrijk economisch knooppunt in Zuid-Oost-Vlaanderen.
Dankzij de directe aansluiting op de N42 geniet je een uitstekende ontsluiting richting Aalst, Geraardsbergen en de E40.
De magazijnen zijn als volgt opgebouwd: een vrije hoogte van 6 meter, met een solide staalstructuur, betonnen wanden en geïsoleerde sandwichpanelen. Er is een automatische sectionale poort (4m x 4m) met aparte toegangsdeur. Daarnaast zijn de loodsen uitgerust met een duurzame polybetonvloer, een lichtstraat met rookluik, branddetectie en individuele aansluitingen voor water, elektriciteit en data.
Oplevering: Q1 2026
Ideaal voor opslag en productie – een uitstekende opportuniteit voor ondernemers die op zoek zijn naar een kwalitatieve en strategisch gelegen bedrijfsruimte.
verkoopprijzen excl. BTW, parkings en nutsen:
VERPLICHT
• 1 parking incl. wachtbuis: €6000/parking/excl. BTW (6m) of €7000/parking/excl.BTW (8m)
• aansluiting nutsvoorzieningen: €12500 excl. BTW
• branddetectie: €3500 excl. BTW
OPTIONEEL
• extra parking personenwagen (6m) : €5000/parking excl. BTW
• extra parking bestelwagen (8m): €6000/parking excl. BTW
• laadpaal: €3500 excl. BTW
Meer info, aarzel niet ons te contacteren:
GSM: 0479 49 55 88
Mail: info@kupa.immo
Détails de la propriété
Finances
- Prix
- € 500.650 hors TVA
- Prix parm²
- € 1.550
- Disponibilité
- A la livraison
30 mars 2026 - Dans le système de TVA
- oui
Localisation géographique
- Localisation géographique
- Industriel
Confort
- Accessible aux fauteuils roulants
- non
- Ascenseur
- non
- Branchement d'égouts
- non
- Connexion d'eau
- oui
Bâtiment
- Surface habitable
- 323,00 m²
- Année de construction
- 2025
- Bâtiment de destination
- Small and medium entreprise
- Structure
- Acier
- Surface brut
- 323,00 m²
- Surface constructible bâtiment principal
- 323,00 m²
- Largeur de façade
- 12,88 m
- Orientation de la façade
- Est
- Revêtement de sol
- Béton poli
- Volets
- oui
- Porte sectionnelle
- 4,00m (l) × 4,00m (h)
- Hauteur libre
- 6 m
- Sortie de secours
- oui
Terrain
- Surface au sol
- 323,00 m²
- Jardin
- non
Information sur l'urbanisme
- Information urbaine
- oui
- Destination
- Zone industrielle pour les entreprises artisanales ou zones pour les petites et moyennes entreprises
- Permis de construire
- oui
- Permis de lotissement
- non
- Droit de préemption
- non
- Invocation
- Pas de correction juridique ou mesure administrative imposée
- G-score
- A
- P-score
- B
Aménagement de l'espace
- Section du cadastre
- B
- Numéro de cadastre
- 1225/F
- Département du cadastre
- HERZELE 1 AFD/ HEREZELE
- Certificat de sol
- oui
Énergie
- Type de fenêtres
- Aluminium
- Double vitrage
- oui
- Inspection de l'électricité
- Non
- Chauffage
- Pas installé
Techniques
- électricité
- oui
- Câblage téléphonique
- oui
- Fosse septique
- oui
- étage de capacité
- 1.5 T/m²
- Courant triphasé
- oui
Garages / parking
- Garages / parking
- non
- Parking extérieur
- oui
- Parking de l'équipe
- non