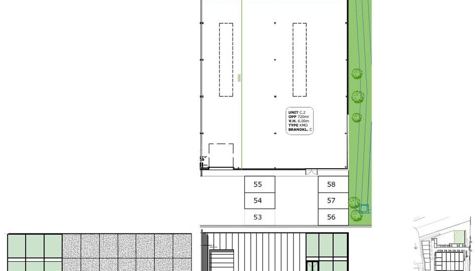
Kmo-unit
REF: M-0080 (C.2)
Leeweg 22/C.2, 9270 Laarne
€ 1.086.500 excl. BTW
- 720 m²
- 720 m²
Het nieuw te bouwen bedrijvenpark STEEN in Laarne biedt 15 KMO-units te koop aan, met oppervlaktes van 128 m² tot 1810m². Units kunnen bovendien samengevoegd worden tot grotere bedrijfsruimtes, ideaal voor groeiende ondernemingen.
Het magazijn C2 heeft 6 parkeerplaatsen. Mezzanine is optioneel en te verkrijgen mits meerprijs.
Het KMO-park ligt centraal in de driehoek Gent – Wetteren – Destelbergen, waardoor het een strategische uitvalsbasis vormt voor bedrijven actief in de Vlaamse Ardennen, het Waasland en de ruime Gentse regio. Bereikbaarheid is een grote troef: de site bevindt zich op slechts 5 minuten van de R4, met een snelle aansluiting naar de E17 en E40 (Klaverblad).
De magazijnen worden opgebouwd in een duurzame staalstructuur met geïsoleerde beton- en sandwichpanelen. Elke unit beschikt over een vrije hoogte van 6 meter, lichtstraat met rookluik, automatische sectionale poort, een afzonderlijke inkomdeur, individuele nutsvoorzieningen en 2 privatieve parkeerplaatsen zijn inbegrepen in de prijs.
bouwvergunning in aanvraag, oplevering normaal voorzien in Q4 2026 .
Meer info, aarzel niet ons te contacteren:
GSM: 0479 49 55 88
Mail: info@kupa.immo
Details van het pand
Financieel
- Prijs
- € 1.086.500 excl. BTW
- Prijs per m²
- € 1.509
- Beschikbaarheid
- Bij oplevering
01 december 2026 - Onder BTW stelsel
- ja
Ligging
- Ligging
- Industrieel
Comfort
- Rolstoeltoegankelijk
- nee
- Lift
- nee
- Air conditioning
- ja
- Aansluiting riolering
- ja
- Aansluiting water
- ja
Gebouw
- Bewoonbare opp.
- 720,00 m²
- Constructie
- Gesloten
- Bouwjaar
- 2026
- Bruto opp.
- 720,00 m²
- Bebouwbare opp. hoofdgebouw
- 720,00 m²
- Gevelbreedte
- 24,00 m
- Type dak
- Platdak
- Oriëntatie voorgevel
- Zuid
- Vloerbedekking
- Gepolieerde beton
- Rookluiken
- ja, RWA
- Sectionale poort
- 4,00m (b) × 4,20m (h)
- Vrije hoogte
- 6 m
- Isolatie
- ja
- Nooduitgang
- ja
Terrein
- Perceel opp.
- 720,00 m²
- Tuin
- nee
Stedenbouwkundige informatie
- Stedenbouwkundige info
- ja
- Bestemming
- Industriegebied
- Bouwvergunning
- nee
- Verkavelingsvergunning
- nee
- Voorkooprecht
- nee
- Dagvaarding
- Geen rechterlijke herstelmaatregel of bestuurlijke maatregel opgelegd
- P-score
- A
- Beschermd erfgoed
- ja
Ruimtelijke ordening
- Kadaster sectie
- B
- Kadaster nummer
- 1044n
- Inplantingsplan
- ja
Energie
- Type schrijnwerk
- Aluminium
- Dubbel glas
- ja
- Elektriciteitskeuring
- Ja, Conform
- Verwarming
- Niet geïnstalleerd
Technieken
- Elektriciteit
- ja
- Telefoonbekabeling
- ja
- Type belichting
- ja, Buitenverlichting
- Draagkracht vloer
- 1 T/m²
- Drijfkracht
- ja
Garages / parking
- Garages / parking
- nee
- Buitenparking
- 6
- Vrachtwagenparking
- nee
- Oplaadpunten
- Wachtbuis voorzien
Indeling
- Keuken
- ja